Mansarda con balcone ed ascensore - AV25040 - Via Maso della Pieve - Pfarrhofstraße rif. AV25040

BOLZANO

227500 €

Via Maso della Pieve - Pfarrhofstraße |

Bolzano Via Maso della Pieve - parte alta interna-
AV25040
A.P.E:G

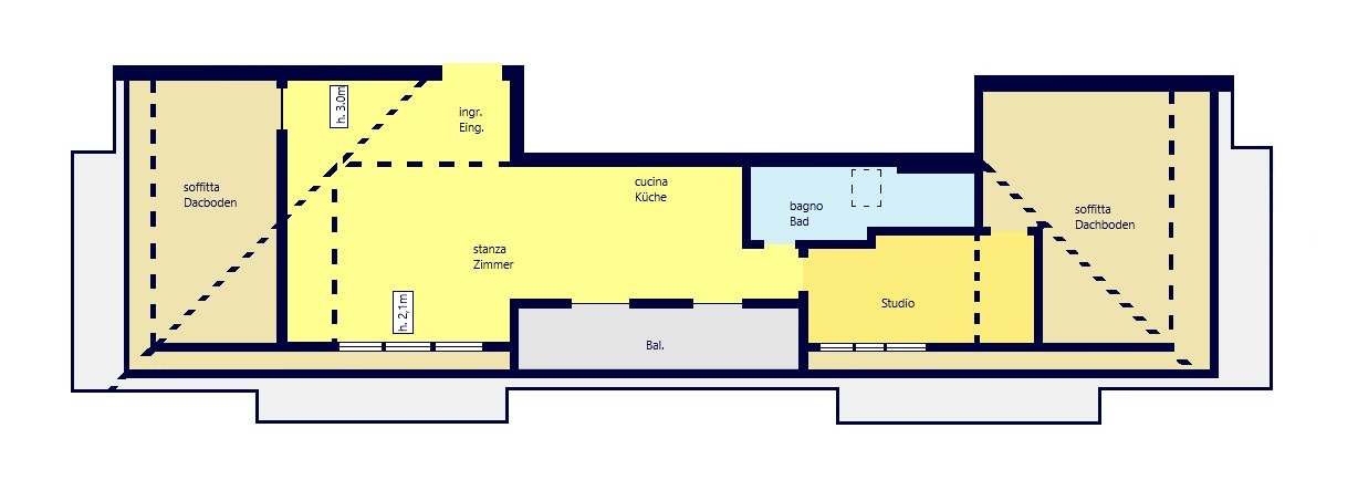
Ampio appartamento bilocale di 62 mq al quinto piano con ascensore fino al quarto. Questo immobile è la soluzione ideale per chi cerca una abitazione mansardata di dimensioni generose all 'ultimo piano ed è disposto a fare una singola rampa di scale.

Situato al quinto piano di un edificio residenziale , con vista aperta ad ovest e posizione interna, l'immobile si presenta con ampi spazi ben distribuiti e luminosi. L' ingresso porta ad una stanza ampia ed accogliente dove si trova la cucina e l' accesso al balcone, il bagno è finestrato con Velux elettrico. Inoltre vi è uno studio separato e due soffitte quali spazio di stivaggio data la mancanza di cantina.

Le spese condominiali ammontano a circa 100 euro mensili comprensive ascensore e acqua calda, il riscaldamento ed il raffrescamento è autonomo con pompa di calore rendendo questa proprietà conveniente dal punto di vista economico. Inoltre, l’appartamento beneficia della vicinanza ai mezzi pubblici oltre che dei posti auto ad uso condominiale ( libero uso con sbarra di accesso) e la possibilità di locare un posto auto ad uso esclusivo.
Foto non disponibili, sorry!

Non perdere questa occasione unica! Contatta subito la nostra agenzia per fissare un appuntamento o ricevere ulteriori informazioni su questo incantevole appartamento bilocale in vendita a Bolzano. Vende abitaREhaus Tel.+Whatsapp 0471383425

Ulteriori Dettagli

  • 62 mq
  • Camere 1
  • Bagni 1
  • Posto auto scoperto 1

 

  • APPARTAMENTO
  • COMPRAVENDITA
  • APE G
  • Spese condominiali: 100 € / mese
  • Esposizione: Ovest

Prenota la tua visita

Hai poco tempo a disposizione. Con la prenotazione diretta puoi prenotare, con almeno 24 ore di anticipo, la data e l'ora per visitare l'immobile. Prendiamo contatto con i proprietari e, in caso positivo confermiamo la tua richiesta. Se per quel giorno oppure ora non fosse possibile provvederemo a prendere contatto con te e pianificheremo la visita il prima possibile con le date ed ore di disponibilità proposte dal proprietario.

Hai anche un immobile da proporre?
Acconsento al trattamento dei dati personali necessari per lo svolgimento delle operazioni indicate nell'Informativa privacy
Acconsento al trattamento dei dati personali necessari per la proposizione di ulteriori immobili - come è previsto nell'informativa privacy - che siano corrispondenti alla richiesta qui espressa.